Te Huur 3 Kamer Appartement Paulus Borstraat In Amersfoort

Amersfoort
Paulus Borstraat
€ 1045,-
G/W/L
Exclusief G/W/L
Soort woning
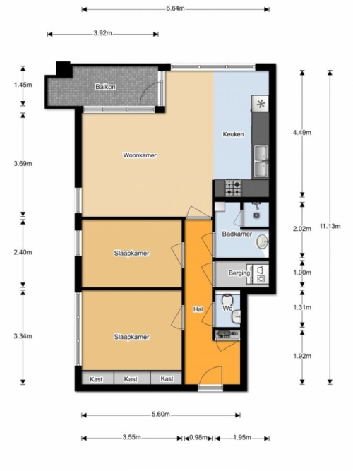
Appartement
Oplevering
Kaal
Woonoppervlakte
66m²
Aantal kamers
3
Aantal slaapkamers
2
Beschikbaar per
2-1-2026
Bezichtiging vanaf
30-12-2025
Selectiedatum
29-12-2025
Gecontroleerd op: 07-Dec-2025
Schrijf je in om te reageren
Bemiddelingskosten
Nee
Object
Direct bij de eigenaar
Borg
1045
Garantiestelling
Mogelijk
Huurtoeslag
Niet mogelijk
Inkomen eis
3,0 X Maandhuur Bruto
Huurtermijn
Onbepaalde termijn
Oplevering
Kaal