Te Huur 4 Kamer Appartement Van Bosseplantsoen In Dordrecht

Dordrecht
Van Bosseplantsoen
€ 845,-
G/W/L
Exclusief G/W/L
Soort woning
Appartement
Oplevering
Kaal
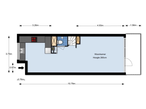
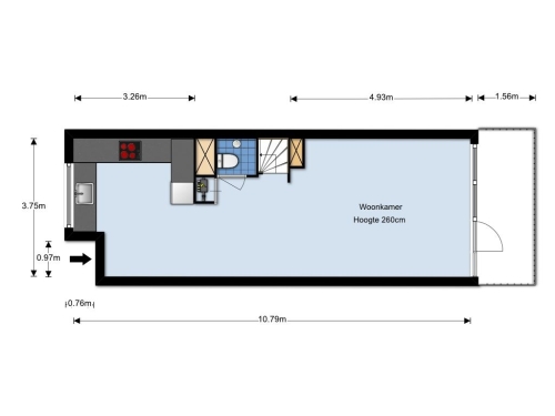
Woonoppervlakte
80m²
Aantal kamers
4
Aantal slaapkamers
3
Beschikbaar per
2-1-2026
Bezichtiging vanaf
30-12-2025
Selectiedatum
29-12-2025
Gecontroleerd op: 08-Dec-2025
Schrijf je in om te reageren
Bemiddelingskosten
Nee
Object
Direct bij de eigenaar
Borg
845
Garantiestelling
Niet mogelijk
Huurtoeslag
Mogelijk
Inkomen eis
N.V.T.
Huurtermijn
Onbepaalde termijn
Oplevering
Kaal